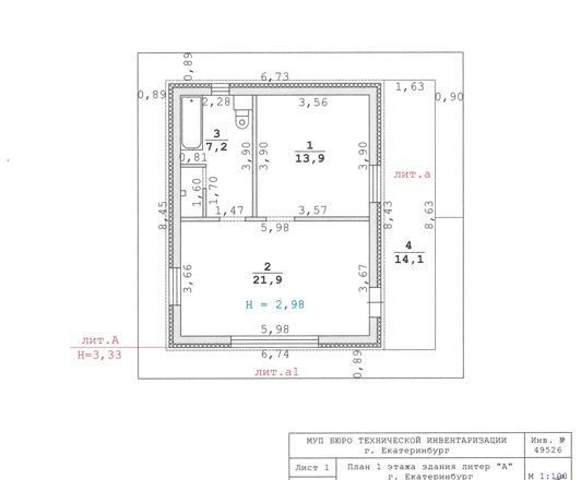
Продам в черте города земельный участок прямоугольной формы, площадью 4 сотки, с одноэтажным индивидуальным жилым домом общей площадью 60 кв. метров с террасой (кухня-гостиная – 22 кв. м., спальня – 14 кв. м., ванная комната – 7 кв. м., помещение бытового назначения – 3 кв. м., терраса – 14 кв. м.), расположенный по адресу: г. Екатеринбург, пос. Совхозный, с/т «Здоровье», дом. 156 (почтовый адрес присвоен согласно распоряжения Департамента архитектуры Администрации города Екатеринбурга). Удачное расположение участка обеспечивает социальную инфраструктуру: магазины, банки, салоны красоты, фитнес клубы, кафе, торгово-развлекательные центры, детские сады, школы, медицинские учреждения. До остановочного комплекса несколько минут пешком. Транспорт: автобус, маршрутное такси. Район расположен в южной части Екатеринбурга, близ транспортных артерий, что делает передвижение быстрым и удобным. Подъездные пути к участку через городскую асфальтированную дорогу. Технико-экономические показатели жилого дома: - год постройки – 2018; - фундамент – ленточный; - материал несущих стен – твинблок 300 мм.; - внутренние стены – твинблок 100 мм.; - крыша – четырехскатная (металлочерпица); - окна – двухкамерные с нанесением энергоэффективной пленки; - высота потолков – 2,98 метров; - выполнено утепление кровли - 200 мм., стен – 50 мм., полов – 50 мм., отмостки – 50 мм., фундамент – 50 мм.; - отопление – теплые полы. - электропроводка в доме выполнена скрытом виде; - водосточная система. Инженерные сети: 1) Водоснабжение от обустроенной скважины, глубиной 35 метров; 1.1) Горячее водоснабжение. 2) Канализация – переливной септик из ж/б колец (10 куб. метров). 3) Электроснабжение – 15 кВт предоставляемые АО «Екатеринбургская электросетевая компания». 4) Дренажная система ливневых стоков с дополнительным септиком на 2 куб. метра. Также имеется возможность подключения к сетям газоснабжения АО «ЕКАТЕРИНБУРГАЗ» (получены технические условия от 25.12.2018 № 32168ДИ на подключение жилого дома к сетям газораспределения). Дом и участок находится на кадастровом учете, прописан один человек. На участке имеется стоянка под автомобиль (общей площадью 30 кв. м., материал – асфальтобетон) и тротуарные дорожки выполнение из асфальтобетона. Участок имеет ограждение по периметру из профнастила с колонами из кирпича на ленточном фундаменте. На участке имеются насаждения: ель обыкновенная (высотой 150 см) – 6 шт., барбарис Тунберга (высотой 45 см) – 3 шт., дербенник иволистый – 2 шт., астильба арендса – 2 шт., вероника колосистая – 2 шт., физостегия виргинская – 3 шт., колерия сизая – 2 шт., фалярис – 2 шт., сирень (высотой 280 см) – 1 шт., яблоня (высотой 200 см) - 1 шт. К вашему распоряжению хорошая альтернатива городской квартире! Документы готовы, чистая продажа, возможна ипотека любого банка. Просмотры по договоренности.
